Wohnungsbau in Mühlehorn
Eine neue Wohnung für Mühlehorn
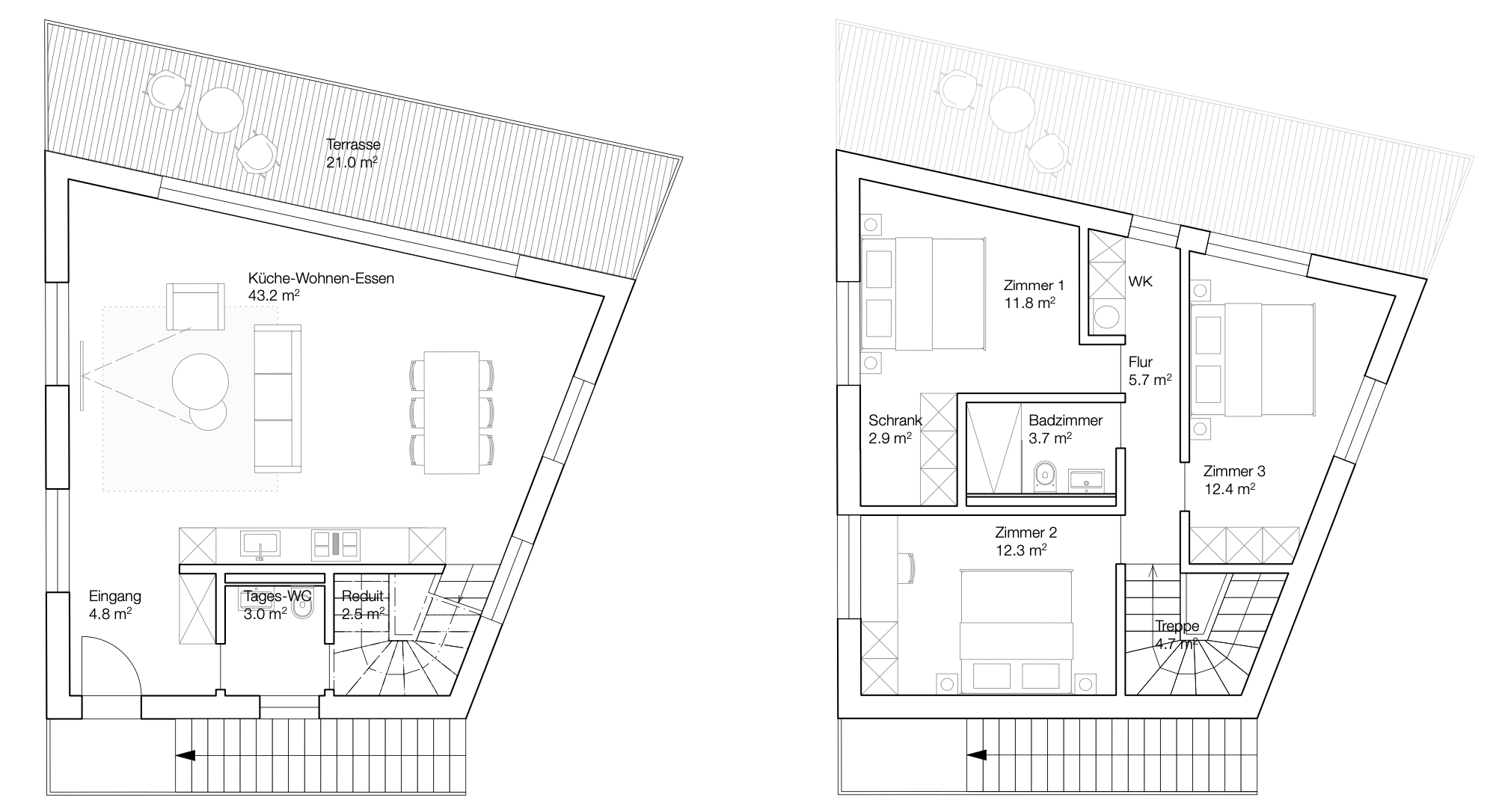
Auf einem Grundstück in Mühlehorn entsteht ein Projekt für eine neue Wohnung. Diese entwickelt sich auf einem bestehenden Sockelgeschoss und vervollständigt das Strassenbild in eine ortstypischen Gebäudevolumen.
Einen Integrierenden Bestandteil dieser Projektstudie umfassen die Abklärungen rund um den Hochwasserschutz, in Zusammenarbeit mit der Niederer + Pozzi Umwelt AG. Diese Zusammenarbeit ermöglicht die Projektierung eines spannenden und vielversprechenden neuen Wohnprojekt.



Blicken Sie in unseren Alltag & in unsere Köpfe
Haben Ihnen diese Informationen weitergeholfen? Samuel Brändli und Giovanna Gioia von Brändli Gioia Architekten GmbH, Igis, tragen in unregelmässigen Abständen für Sie Wissenswertes zusammen. Sie möchten ihr Know How weitergeben, so dass Sie sich ein Bild ihrer Arbeit, Fachgebiete und von anderen den Bau und die Architektur im weitesten Sinne betreffenden Themen machen können.